Noordwijk
Prins Hendrikweg 12
€ 1.149.000 k.k.

Bekijk 37 foto's

Bekijk 37 foto's

Bekijk 37 foto's
Heeft u interesse?
Neem contact met ons op. We geven graag meer informatie of plannen een bezichtiging.
Omschrijving
Kenmerken
- Status
- Verkocht
- Oplevering
- In overleg
- Adres
- Prins Hendrikweg 12
- Postcode
- 2202 EB
- Plaats
- Noordwijk
Aanvaarding
Bouw
- Soort woonhuis
- Villa, Geschakelde woning
- Soort bouw
- Bestaande bouw
- Bouwjaar
- 1974
- Onderhoud binnen
- Goed
- Onderhoud buiten
- Goed
Oppervlakten en inhoud
- Woonoppervlakte
- ca. 219m²
- Perceeloppervlakte
- ca. 1.235m²
- Overig oppervlakte
- ca. 33m²
- Inhoud
- ca. 871m³
Indeling
- Aantal kamers
- 8
- Aantal slaapkamers
- 4
- Aantal badkamers
- 2
- Aantal verdiepingen
- 3
- Voorzieningen
- TV-Kabel, Rookkanaal, Schuifpui, Natuurlijke ventilatie
Energie
- Energielabel
- D
- Warm water
- C.V.-ketel, Elektrische boiler eigendom
- Verwarming
- C.V.-ketel
- Ketel
- Nefit (2012, Eigendom)
Buitenruimte
- Ligging
- Beschutte ligging
- Balkon
- Ja
- Tuin
- Achtertuin, Voortuin, Zijtuin
- Achtertuin
- West, 700m², 1750×4000cm
- Schuur
- Vrijstaand hout
Garage
- Soort garage
- Inpandig
- Capaciteit
- 2
- Afmetingen
- 33m², 550×600
Locatie
[
{
"address": "Prins Hendrikweg 12",
"zipCode": "2202 EB",
"city": "Noordwijk",
"lat": 52.2418702,
"lng": 4.4375869,
"heading": 0,
"pitch": 0
}
]
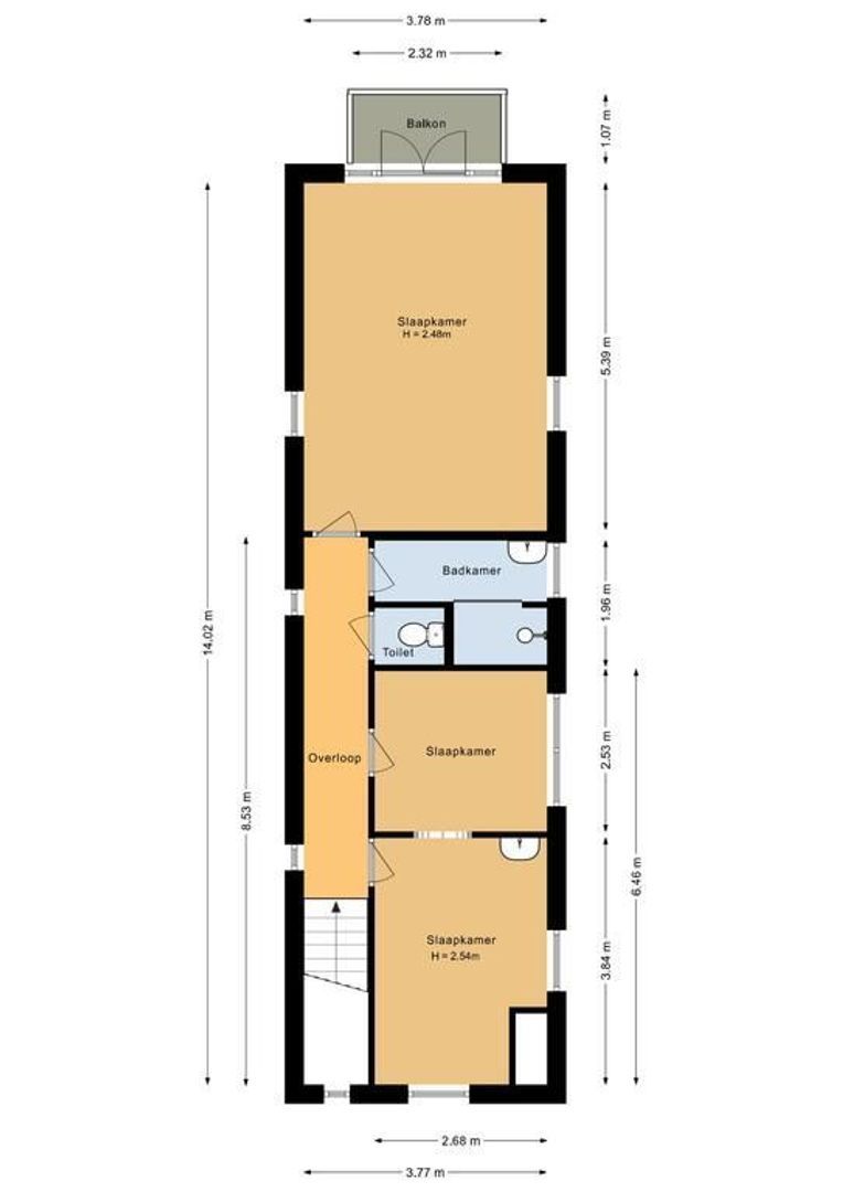
Plattegronden
Laden, een moment a.u.b.
Video
Benieuwd naar wat we voor u kunnen betekenen?
Vul het formulier hiernaast in, dan nemen wij zo spoedig mogelijk contact met u op.
Whatsapp of bel
071-3619365